Terasaki Budokan

Community Centre

#51 of 1006 Event Space venues in Los Angeles
#30 of 209 Garden venues in Los Angeles
  1 review  â€“ 
249 South Los Angeles Street, Los Angeles, CA 90012 –
Downtown Los Angeles, CA
Manager's avatar
Terasaki Budokan
Your Personal Event Manager from Terasaki Budokan
Response rate: 100%
Response time: Within 12 hours
Message host
Partnered with Tagvenue for 1 year
This manager has been a trusted partner of Tagvenue, consistently recognised by customers for their reliability.
Excellent communication - 5/5
1 verified clients rated their communication with the venue manager as 5. They appreciated the manager's professionalism and quick response times.
Message host

Venue overview

Multipurpose center in Downtown LA's Little Tokyo, featuring a plaza with bistro-lit stage, lush greenery, and a terrace with city views. Ideal for cultural events, weddings, and community gatherings.

This is an AI-generated summary based on client reviews and venue profile

Spaces for hire at Terasaki Budokan

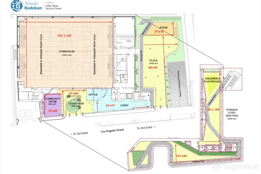
Indoor Gymnasium
Sports Hall
·
Private space
900 seats
1210 standing
Book 3 hr. minimum
Our versatile gymnasium is perfect for both sports and non-sports events, offering a flexible and dynamic space to suit your needs. For sports use, the indoor gymnasium features two basketball courts, four volleyball courts, and a dedicated competition space for martial arts, with seating available for up to 600 spectators. For non-sports use, ...

Wi-Fi available
Natural light
Air conditioner
Projector
Flatscreen TV
PA system / music speakers
Play your own music

from $700 hire fee
Pricing updated by venue 9 months ago
Enquire now
Community Room & Courtyard
Meeting Room
·
Private space
115 seats
156 standing
The Community Room is a multi-purpose space that accommodates classes, meetings, workshops, and countless other activities featuring a built-in LED TV for presentations and floor-to-ceiling glass providing views of the courtyard. The outdoor courtyard is set with trees and a rock garden and surrounded by glass windows on either side offering a se...

Wi-Fi available
Natural light
Air conditioner
Projector
Flatscreen TV
PA system / music speakers
Play your own music

from $475 hire fee
Pricing updated by venue 9 months ago
Enquire now
Plaza & Stage
Outdoor Space
·
Private space
350 seats
384 standing
Our beautiful outdoor plaza, featuring an elevated stage, is the perfect setting for weddings, concerts, and various events. Strands of bistro lighting are draped above, while lush vegetation, trees, and shrubs surround the plaza, creating a charming and intimate atmosphere. Ideal for wedding ceremonies, receptions, rehearsal dinners, wedding show...

Wi-Fi available
Natural light
Air conditioner
Projector
Flatscreen TV
PA system / music speakers
Play your own music

from $600 hire fee
Pricing updated by venue 9 months ago
Enquire now
Terrace
Terrace
·
Private space
235 seats
377 standing
The outdoor second-level terrace wraps around the north and east sides of our facility, offering stunning views of Los Angeles Street and the plaza and stage below. This beautiful space is adorned with green areas, a children's playground, a community garden, and a mural, providing a serene and engaging environment for any event. Rentals include t...

Wi-Fi available
Natural light
Projector
Flatscreen TV
PA system / music speakers
Play your own music

from $450 hire fee
Pricing updated by venue 9 months ago
Enquire now

Reviews and ratings

5.0
Communication
5.0
Verified reviews come from Tagvenue users. All reviews are checked by our team to uphold our trust and safety standards.
TG
Teddy G.
Verified review
Excellent communication
This host was great and appreciate all their help!
5.0

Prices and opening hours

Sunday
9:00 am – 10:00 pm
from $450–$700 hire fee per hour
Indoor Gymnasium
9:00 am – 10:00 pm
from $700 hire fee per hour
Plaza & Stage
9:00 am – 10:00 pm
from $600 hire fee per hour
Terrace
9:00 am – 10:00 pm
from $450 hire fee per hour
Community Room & Courtyard
9:00 am – 10:00 pm
from $475 hire fee per hour
Monday
9:00 am – 10:00 pm
from $450–$700 hire fee per hour
Indoor Gymnasium
9:00 am – 10:00 pm
from $700 hire fee per hour
Plaza & Stage
9:00 am – 10:00 pm
from $600 hire fee per hour
Terrace
9:00 am – 10:00 pm
from $450 hire fee per hour
Community Room & Courtyard
9:00 am – 10:00 pm
from $475 hire fee per hour
Tuesday
9:00 am – 10:00 pm
from $450–$700 hire fee per hour
Indoor Gymnasium
9:00 am – 10:00 pm
from $700 hire fee per hour
Plaza & Stage
9:00 am – 10:00 pm
from $600 hire fee per hour
Terrace
9:00 am – 10:00 pm
from $450 hire fee per hour
Community Room & Courtyard
9:00 am – 10:00 pm
from $475 hire fee per hour
Wednesday
9:00 am – 10:00 pm
from $450–$700 hire fee per hour
Indoor Gymnasium
9:00 am – 10:00 pm
from $700 hire fee per hour
Plaza & Stage
9:00 am – 10:00 pm
from $600 hire fee per hour
Terrace
9:00 am – 10:00 pm
from $450 hire fee per hour
Community Room & Courtyard
9:00 am – 10:00 pm
from $475 hire fee per hour
Thursday
9:00 am – 10:00 pm
from $450–$700 hire fee per hour
Indoor Gymnasium
9:00 am – 10:00 pm
from $700 hire fee per hour
Plaza & Stage
9:00 am – 10:00 pm
from $600 hire fee per hour
Terrace
9:00 am – 10:00 pm
from $450 hire fee per hour
Community Room & Courtyard
9:00 am – 10:00 pm
from $475 hire fee per hour
Friday
9:00 am – 10:00 pm
from $450–$700 hire fee per hour
Indoor Gymnasium
9:00 am – 10:00 pm
from $700 hire fee per hour
Plaza & Stage
9:00 am – 10:00 pm
from $600 hire fee per hour
Terrace
9:00 am – 10:00 pm
from $450 hire fee per hour
Community Room & Courtyard
9:00 am – 10:00 pm
from $475 hire fee per hour
Saturday
9:00 am – 10:00 pm
from $450–$700 hire fee per hour
Indoor Gymnasium
9:00 am – 10:00 pm
from $700 hire fee per hour
Plaza & Stage
9:00 am – 10:00 pm
from $600 hire fee per hour
Terrace
9:00 am – 10:00 pm
from $450 hire fee per hour
Community Room & Courtyard
9:00 am – 10:00 pm
from $475 hire fee per hour
Pricing updated by venue 9 months ago

Best Price guarantee: you will always pay the same price as booking directly with the venue, and we never add hidden or processing fees.

Facilities and catering options

Up to 1210
standing
Up to 900
seats
External catering allowed
Parking available
Promoted / ticketed events
BYO alcohol
Unavailable: In-house catering
Unavailable: Accommodation available
Unavailable: Alcohol provided

About Terasaki Budokan

Terasaki Budokan is a Tagvenue Partner. This business has registered with Tagvenue and agreed to our venue partner standards.

Welcome to our nonprofit multipurpose sports and activities center in Downtown Los Angeles! Our mission is to offer a vibrant and sustainable space that connects youth, families, and seniors to Japanese American culture through sports, community activities, and engaging events in Little Tokyo.

Our facility boasts five main rental spaces along with an underground parking lot. The Plaza & Stage is ideal for weddings, concerts, and various events, beautifully adorned with bistro lighting and surrounded by lush vegetation, trees, and shrubs. The outdoor Terrace provides stunning views of Los Angeles Street and the Plaza & Stage below, featuring green spaces, a children's playground, a community garden, and a mural. The Community Room is perfect for classes, meetings, and more, including a built-in TV and floor-to-ceiling glass windows offering courtyard views. The Courtyard, with its trees and rock garden, offers an indoor-outdoor ambiance ideal for meetings, classes, ceremonies, and meditation. The Gymnasium is versatile for both sports and non-sports uses, featuring two basketball courts, four volleyball courts, and a competition space for martial arts with seating for up to 600 spectators. For non-sports events, the gym can be transformed with a floor covering system (additional fee required) and includes a sound system.

Our underground parking garage is open to the public from 7 am to 12 am daily, accommodating up to 55 cars and including three electric vehicle charging stations. We look forward to hosting your next event and helping you connect with the rich culture of Little Tokyo.

FAQ

The rental includes use of tables and chairs.

Yes, an alternate space can be rented for getting ready.

At Terasaki Budokan, the following catering options are available:

  • Bringing your own catering/food is allowed
  • Bringing your own alcohol is allowed

  • Paid parking is available on-site: 55 spaces
  • Paid parking facilities are available nearby

Terasaki Budokan is located at 249 South Los Angeles Street, in Downtown Los Angeles, CA.

Tagvenue regularly reviews published venues to ensure the information is accurate and up to date. If you notice anything unusual in this listing, please report it.